Maison 4 pièces Paris 18 120m2
Description du bien
Charmante maison en fond de cour dans le 18ème arrondissement de Paris, comme à la campagne.
**Description du bien :**
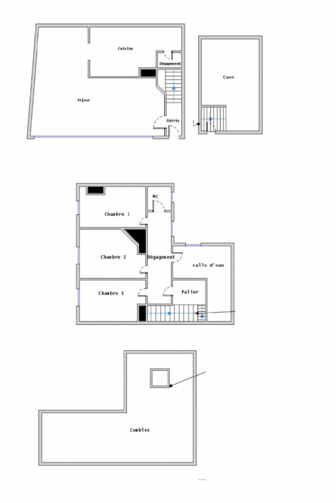
Cette charmante maison, située au calme absolu en fond de cour d’une copropriété, offre une surface totale de 120m2, dont 105m2 en loi Carrez et 15m2 hors Carrez. En franchissant la porte, vous serez séduit par un grand séjour baigné de lumière avec une grande hauteur sous plafond. Cet espace ouvert et lumineux avec vue sur cour arborée sera le lieu idéal pour passer d’agréables moments en famille ou entre amis.
A l’étage, vous découvrirez trois chambres offrant un espace privé confortable pour chaque membre de la famille. Une salle de bain et des WC indépendants complètent cet étage.
Cave et grenier.
**Emplacement idéal :**
Nichée au coeur du 18ème arrondissement de Paris, cette maison est située rue Etex, à 15 mn à pieds des Abbesses et de Montmartre. Vous profiterez ainsi de tous les avantages d’un emplacement central tout en résidant dans un environnement calme et paisible, à l’abri de l’agitation de la ville. Les commerces, les écoles, les transports en commun et les parcs sont à proximité, ce qui facilite grandement la vie quotidienne.
N’hésitez pas à nous contacter dès aujourd’hui afin d’organiser une visite de cette maison exceptionnelle de par son calme et sa situation géographique.
**Caractéristiques clés :**
– Superficie totale : 120m2 (105m2 en loi Carrez + 15m2 hors Carrez)
– Grand séjour lumineux
– Calme absolu
– A 15 mn à pieds de Montmartre
**Prix :** 1 1500 000 euros
Copropriété de 28 lots – dont 26 lots habitation.
Charges annuelles : 1125 euros.
Parlons de votre projet
Laissez-nous vos coordonnées, un conseiller dédié vous rappelle sous 24h.




















