Appartement Paris 3 pièce(s) 71 m2
Description du bien
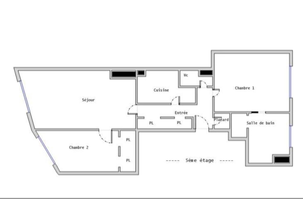
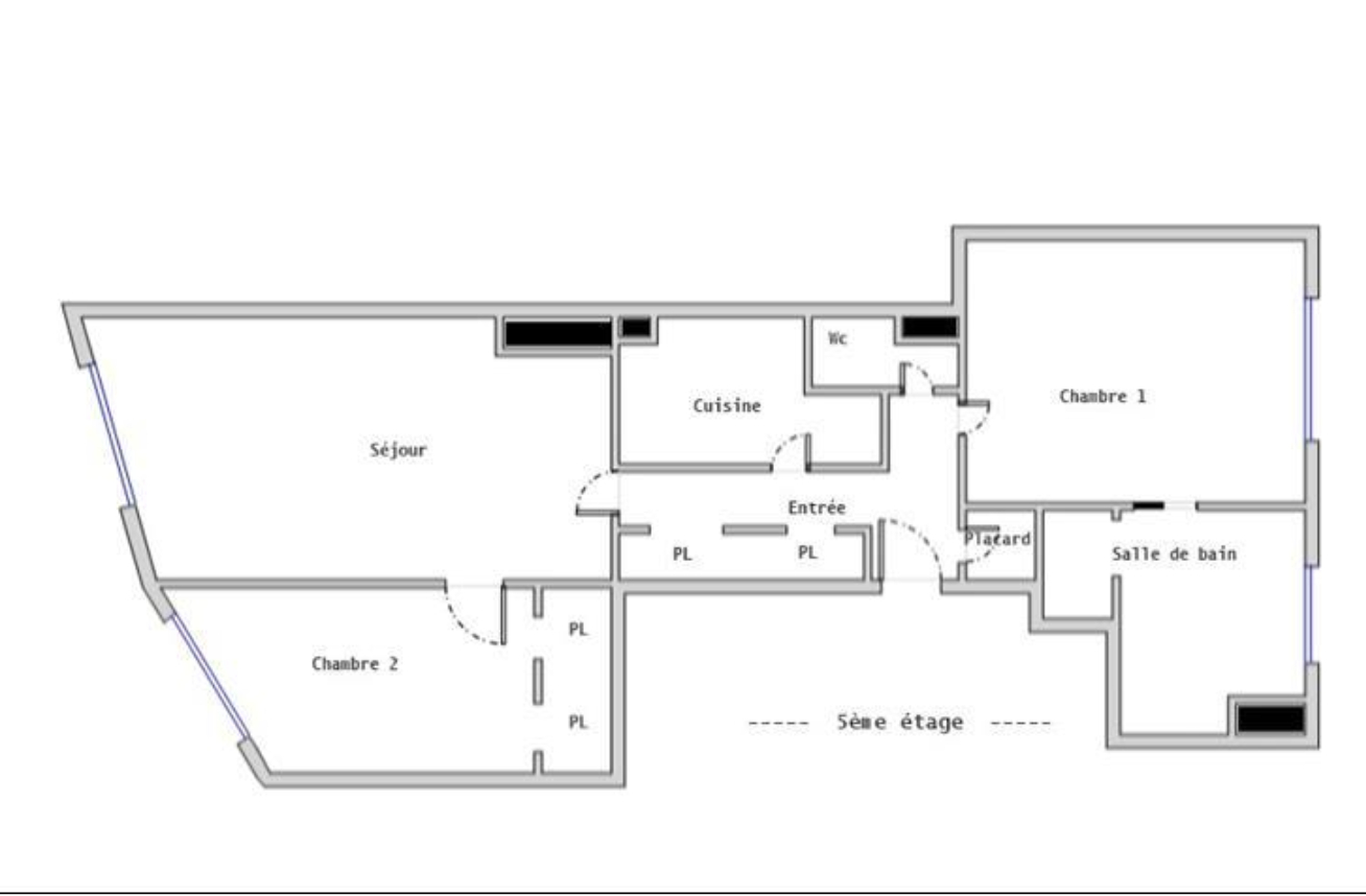
Paris 18, Grandes Carrières , au croisement de la rue Marcadet et de la Rue Damrémont, Lamarck, l’Agence Stéphane Plaza vous propose en exclusivité ce très beau 3 pièces / 2 chambres de 71m2 situé au 5 éme étage (avec ascenseur) d’un immeuble de la fin des années 60′
Il se compose d’une entrée avec un grand placard de rangement et un espace Buanderie. S’en suivent Un WC indépendant, une chambre sur cour avec sa salle de bains (Vasque, douche et baignoire) , puis une cuisine indépendante aménagée et équipée, un très beau séjour de 25m2 lumineux à la vue dégagée et enfin une seconde chambre avec elle aussi de grands placards sur mesure.
L’appartement est en parfait état. Il est très lumineux et calme et offre une vue dégagée.
Pas de travaux de copropriété à prévoir.
Aucune anomalie électrique ni Gaz.
Ravalement façade effectué l’an dernier.
Poss de parking à la location dans l’immeuble.
DPE : D.
Chambre 1 : 11,2m2 – Chambre 2 : 11,58 m2.
Pas de cave.
Belle opportunité sur ce secteur très recherché.
Copropriété de 15 lots – dont 15 lots habitation.
Charges annuelles : 1900 euros.
Parlons de votre projet
Laissez-nous vos coordonnées, un conseiller dédié vous rappelle sous 24h.
















